本文由酒店vi设计, 上海酒店VI设计公司 ,杭州酒店VI设计公司(www.hotelvi.net)收集并整理,更多设计文章请访问问:www.hotelvi.net
关键词:餐厅设计 餐厅布局 餐厅空间设计 座位安排
一个成功的餐厅设计,不仅需要外观上的吸人眼球,符合人性的设计细节更是除了美食以外,吸引与维持客源的重要因素。
其中座位区又是一个餐厅的重中之重,今天就给大家分享一些座位区布局设计的注意事项。
布局动线 树枝状动线
所谓树枝状的动线规划简单说就是将用餐区所有动线分层级做出主副动线,主动线需便利通达各区域,各分区内再依座位分布安排次动线与末梢动线,主动线最宽且长,建议须有150公分以上宽度,各区域内的次动线则约150-135公分,末梢动线及座位周边,也不得低于100公分。
服务生上菜主要循主动线行走以减少碰撞机会。


—— 区隔动线 ——
餐厅大致分为厨房内场(作业区)与外场座位区,除了外场的动线要演练设计外,为了避免客人误入内场,应特别将内场出入的动线与客人动线明显区隔,若无法作分流,也必须设立门档,并在门上以显著标语提醒禁止进入;
另外,洗手间的动线也要清楚标示,才能避免客人因找洗手间误入内场,造成不必要的麻烦。

—— 补给动线 ——
餐厅经营会有厨房进货、各种物资补给,甚至机器设备维修的需求等,而这些内部进货的动线规划应避开客人行走动线,有些餐厅强调烹饪过程透明化,因此会将作业区移植前段位置,不过仓库或备料区多半还是在后方,为方便厨房人员与物资设备进出,应留有后门做出入动线,而且要注意动线的宽敞度与平顺,以免货物或大型机器不好出入。

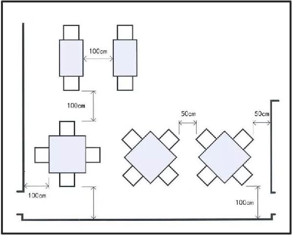
座位安排 座位间距以不打扰邻座为准
餐厅座位的多寡与经营成效有绝对关系,放上较多座位可以吸纳更多客人量,但过度讲究坪效也会让座位太拥挤,导致用餐气氛与品质降低。
一般座位与座位之间最好有100公分以上的距离,中央的座位对角线距离最好有50公分以上,可避免起身动作易打扰到邻座。座位设定数量比空间可容纳的数量少,留出较为宽敞的尺度,也可以确保空间的舒适度,营造出慵懒的氛围。


—— 可依每平一人座抓出座位配比 ——
每一类型的餐厅对于座位大小的需求不尽相同,经营者需要先考虑自己想要营造的风格与氛围再决定座位数量。但若以一般餐厅的基本规则,可以先将总平数扣除如厨房、吧台等机能空间后,大约以一人座位需要一平空间的计算方式,来抓出空间与座位数的适合配比。

—— 注意座位规划与视野之间的关系 ——
除了依据餐厅平数抓出适合的座位数外,更重要的是位置如何安排,其中一大原则就是依据想让客人看见的风景来安排位置,其中一大原则就是依据想让客人看见的风景来安排位置。
例如希望能看见造型酷炫的吧台区、赏心悦目的庭院窗景或是主题性的装饰墙、艺术装置等,当不同座位有了专属的风景自然就能营造出好的用餐气氛。

还可以利用座位的高低差来创造不同的视野感受。例如高吧台区、餐桌区与沙发区,透过家具的高度就可以呈现出更多层次的视角与感觉;
也可以利用地板的高低差,比如将某区块的板架高设计,在摆放造型感抢的桌椅,也可以营造不同氛围的用餐区,若店内举办活动也可以将桌椅撤掉改作为舞台区,相当方便。

桌椅的选择 如何排布
散桌类



卡座类



如何确定款式尺寸
高级餐厅在桌椅的选择上会较为考究尺寸与舒适度,而价位较平实的餐厅则应考虑翻桌率,若是座位太过于舒服反而会让客人坐太久,不利于快速翻桌。


风格统一最安全
最安全的桌椅风格当然是跟着室内风格走,同类型的设计可以有强化风格的效果,但是,对比的风格搭配也可以创造强烈反差彰显个性,关键还是要看餐厅的定位。


即便是餐厅座位区这样局部空间的布局设计都有这么多讲究,要想真正的懂设计不仅是外观酷炫,每个细节对于一个空间的使用和运营都有着莫大的影响。